Flexible office space in Berlin

The floor plans of Feratti Offices in Berlin are practically arranged to give your business the freedom that it needs. Every floor is arranged differently and allows you to use your Berlin office space exactly as you want it.

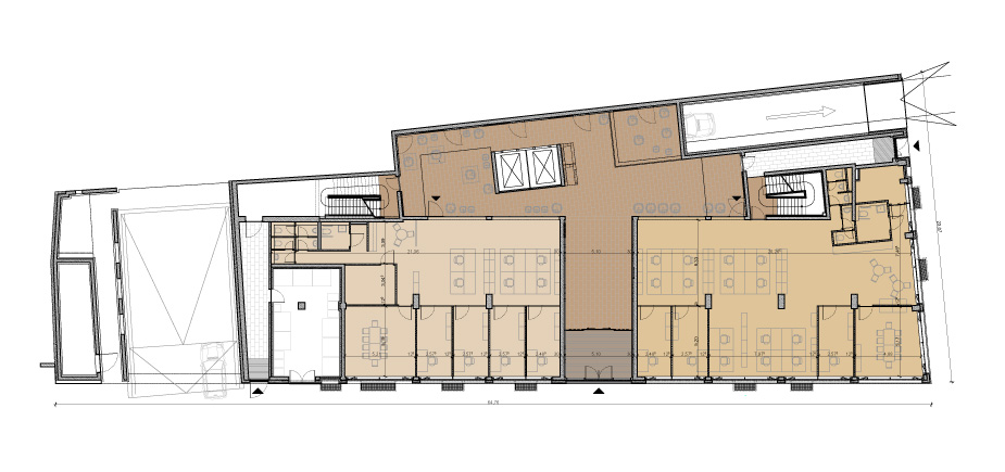
Take a look at the plans of the various floors below and decide which office space best suits your needs.

Office Berlin?

The office spaces in Berlin comprise five floor plans and are all the same size. The ground floor contains a smaller office space divided into two independent office units. The roof terrace is shared by all the building’s occupants and is ideal for social occasions or lunch in the sun.

Detailed information about the spaces is available here: Feratti Building

*   shared rental areas included

** area 1 = 211 sqm, area 2 = 271 sqm

Ground floor

Total area: 1.180 sqm

Rental area: 482 sqm**

Rental status: available

Total area

 

890 sqm

 

 

1.180 sqm

 

1.185 sqm

 

1.185 sqm

 

1.185 sqm

 

1.185 sqm

 

1.179 sqm

 

133 sqm

 

5440 sqm

Height

 

3,80 m

 

 

4,43 m

 

3,51 m

 

3,51 m

 

3,51 m

 

3,51 m

 

3,73 m

 

Terrace

Rental area*

 

12 Double parking places

1 Single parking place

1 Handicapped-pp

482 sqm**

 

994 sqm

 

991 sqm

 

991 sqm

 

991 sqm

 

991 sqm

 

in rental area included

Floor

 

Basement

 

 

Ground floor

 

1st floor

 

2nd floor

 

3rd floor

 

4th floor

 

5th floor

 

Top floor

 

Rental area total: