Flexible Bürofläche in Berlin

Die Büroflächen von Feratti Offices in Berlin sind praktisch eingeteilt und bieten Ihrem Unternehmen die Freiheit, die Sie brauchen. Jedes Geschoss ist anders eingeteilt und die Büroräume können frei gestaltet werden.

Schauen Sie sich untenstehend die Grundrisse der verschiedenen Etagen an und entscheiden Sie, welche Bürofläche am besten zu Ihnen passt.

Geschoss

 

Untergeschoss

 

 

Erdgeschoss

 

1.Obergeschoss

 

2. Obergeschoss

 

3. Obergeschoss

 

4. Obergeschoss

 

5. Obergeschoss

 

Dachgeschoss

 

Gesamtmietfläche:

Gesamtfläche

 

890 qm

 

 

1.180 qm

 

1.185 qm

 

1.185 qm

 

1.185 qm

 

1.185 qm

 

1.179 qm

 

133 qm

 

5.440 qm

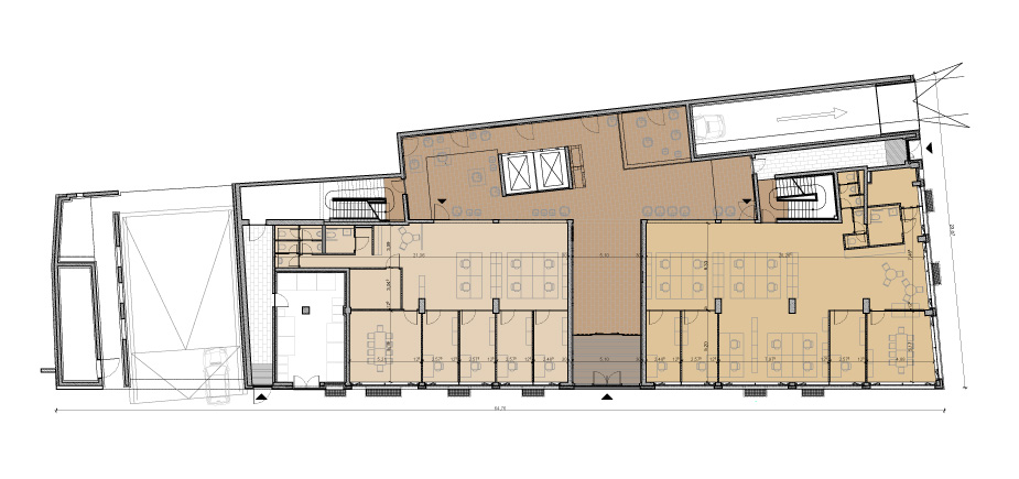
Erdgeschoss

Höhe

 

3,80 m

 

 

4,43 m

 

3,51 m

 

3,51 m

 

3,51 m

 

3,51 m

 

3,73 m

 

Terrasse

Mietfläche*

 

12 Doppelparker

1 Einzelstellplatz

1 Behinderten-PP

482 qm**

 

994 qm

 

991 qm

 

991 qm

 

991 qm

 

991 qm

 

in Mietfl. inkl.

..... Dachgeschoss

 

..... 5. OG

 

..... 4. OG

 

..... 3. OG

 

..... 2. OG

 

..... 1. OG

 

..... EG

 

..... UG

Gesamtfläche: 1.180 qm

Mietfläche: 482 qm**

Mietstatus: noch frei

*   inkl. gemeinschaftlicher Mietflächen EG/DG

**  Fläche 1 = 211 qm, Fläche 2 = 271 qm

Die Büroräume in Berlin Mitte sind auf den fünf Etagen gleich gross. Im Erdgeschoss befindet sich eine kleinere Bürofläche, eingeteilt in zwei selbständige Büros. Die Terrasse auf dem Dachgeschoss wird mit allen Mietern geteilt und eignet sich besonders gut für soziale Gelegenheiten oder ein Mittagessen in der Sonne.

Detaillierte Informationen über die Nutzung finden Sie unter Büroräume.

english