english

Geschoss

 

Untergeschoss

 

 

Erdgeschoss

 

1.Obergeschoss

 

2. Obergeschoss

 

3. Obergeschoss

 

4. Obergeschoss

 

5. Obergeschoss

 

Dachgeschoss

 

Gesamtmietfläche:

..... Dachgeschoss

 

..... 5. OG

 

..... 4. OG

 

..... 3. OG

 

..... 2. OG

 

..... 1. OG

 

..... EG

 

..... UG

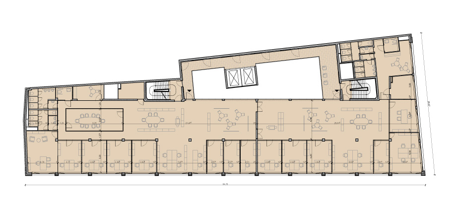
3. Obergeschoss

Gesamtfläche: 1.185 qm

Mietfläche: 991 qm

Mietstatus: noch frei

Gesamtfläche

 

890 qm

 

 

1.180 qm

 

1.185 qm

 

1.185 qm

 

1.185 qm

 

1.185 qm

 

1.179 qm

 

133 qm

 

5.440 qm

Höhe

 

3,80 m

 

 

4,43 m

 

3,51 m

 

3,51 m

 

3,51 m

 

3,51 m

 

3,73 m

 

Terrasse

Mietfläche*

 

12 Doppelparker

1 Einzelstellplatz

1 Behinderten-PP

482 qm**

 

994 qm

 

991 qm

 

991 qm

 

991 qm

 

991 qm

 

in Mietfl. inkl.

*   inkl. gemeinschaftlicher Mietflächen EG/DG

**  Fläche 1 = 211 qm, Fläche 2 = 271 qm